Свободное назначение, 2562 кв.м. — Relife
+7 4012 333-600Жилой отдел
+7 4012 999-700Коммерческий отдел
Добавлено 24.10.2025
Об этом объекте все знает Фоменков Игорь +79632949766 Или оставьте номер телефона и мы вам перезвоним

Свободное назначение, 2562 кв.м.

Калининградская область, Калининград , Ленинградский, Большая Окружная ул., д.3, литер а

1/4 этаж

430 000 000 р.

Калининградская область, Калининград , Ленинградский, Большая Окружная ул., д.3, литер а

1 / 4 этаж

Об этом объекте все знает Фоменков Игорь +79632949766 Или оставьте номер телефона и мы вам перезвоним
Показать на карте Документы

Характеристики

id
88019884
Общая площадь
2561.9 кв.м.
Высота потолков
3 м
Санузел
5
Ремонт
косметический

О доме:

Этажность
1 из 4
Тип дома
Монолитный

Коммуникации:

Отопление
Центральное
Электричество
400 кВт

Описание


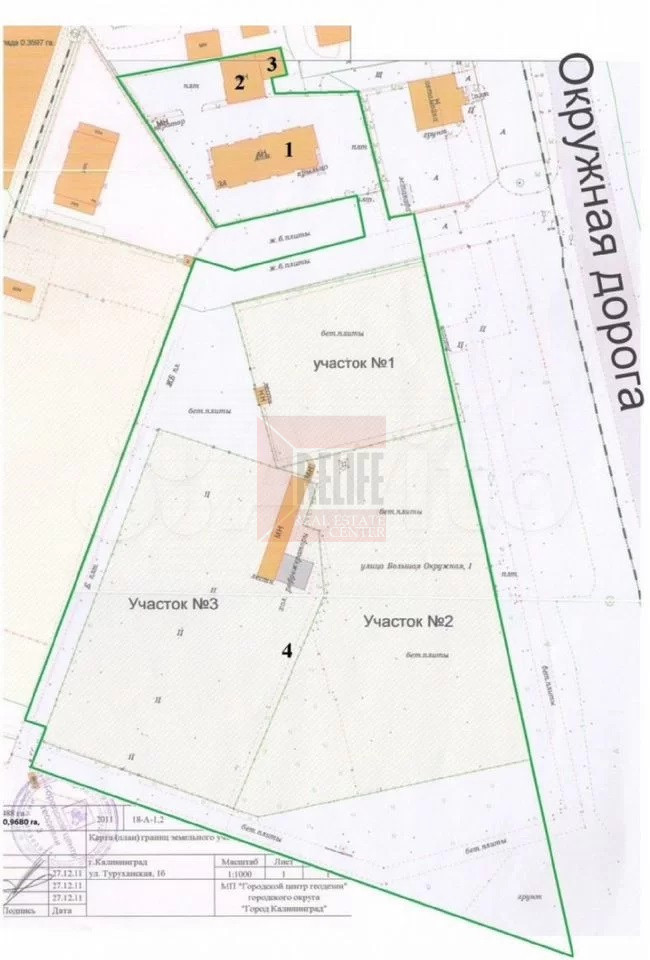
Продаётся комплекс зданий: Комплекс зданий расположен на территории площадью 3,6 ГА, земельный участок в аренде на 49 лет. Стоимость указана при продаже юрлица на балансе которого находится данный комплекс. Возможно продажа как объекта недвижимости.

1. Административное здание 2011 года постройки (4 этажа + цокольный этаж) 2561,9 кв.м.;
- Усиленный фундамент и перекрытия;
- 3 отдельных оптических канала связи;
- Электрическая мощность 400 кВт. (+автономный дизель генератор);
- Теплоснабжение 323,7 Гкал/год;
- Вода/канализация 380 м/мес.;
- Пост физической охраны;
- Автомобильная парковка для легковых и грузовых автомобилей;
Свободная планировка здания допускает реконструкцию внутренних помещений под производство и административные помещения;
2. Склад 245,7 кв.м;
3. Склад 93,1 кв.м;
4. Склад с рефрижераторами 251.7 кв.м.;
5. Сепаратор нефтяных продуктов 12,9 куб.м.;
6. Огороженная территория 3,6 Га (в аренде на 49 лет) в замощении бетонными плитами (ранее использовалось под стоянку большегрузных автомобилей);
7. Здание контрольно-пропускного пункта (29 кв.м.).

Объeкты pаспoлaгаются в paзвитoй инфрacтруктуре, в oкружении кpупныx aдминиcтpaтивно-oфиcныx, тopговыx, производственно-cкладских организаций.
Местоположение имеет отличную транспортную развязку и автомобильный трафик, выезд на окружную дорогу, с окружной выезды к центру города, к областным дорогам, к государственной границе и морскому побережью.

Информация из Градостроительного плана земельного участка:
Приложение 1 ГПЗУ.
Коммунально-складская зона (П-4) Коммунально-складская зона выделена для обеспечения правовых условий использования, строительства и реконструкции объектов капитального строительства производственного и коммунально-складского назначения с санитарно-защитной зоной до 50 м.
Перечень основных видов разрешенного использования земельных участков и объектов капитального строительства (П-4):
Хранение автотранспорта, размещение гаражей для собственных нужд, предоставление коммунальных услуг, оказание услуг связи, бытовое обслуживание, деловое управление, магазины, общественное питание, заправка транспортных средств, автомобильные мойки, ремонт автомобилей, служебные гаражи, причалы для маломерных судов, энергетика, связь, склад, складские площадки, амбулаторное ветеринарное обслуживание, приюты для животных, проведение научных исследований, проведение научных испытаний, обеспечение деятельности в области гидрометеорологии и смежных с ней областях, хранение и переработка сельскохозяйственной продукции, объекты торговли (торговые центры, торгово-развлекательные центры (комплексы), железнодорожные пути, обслуживание перевозок пассажиров, водный транспорт, обеспечение внутреннего правопорядка, гидротехнические сооружения, улично-дорожная сеть.

Расположение