Коммерческая, 1229 кв.м. — Relife
+7 4012 333-600Жилой отдел
+7 4012 999-700Коммерческий отдел
Добавлено 02.04.2026
Об этом объекте все знает Шеманов Дмитрий +79097989162 Или оставьте номер телефона и мы вам перезвоним

Коммерческая, 1229 кв.м.

Калининградская область, Гурьевский район, Гурьевск , Безымянная ул., д.31

1/2 этаж

1 229 140 р.

Калининградская область, Гурьевский район, Гурьевск , Безымянная ул., д.31

1 / 2 этаж

Об этом объекте все знает Шеманов Дмитрий +79097989162 Или оставьте номер телефона и мы вам перезвоним
Показать на карте Документы

Характеристики

id
74774616
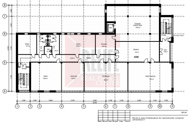
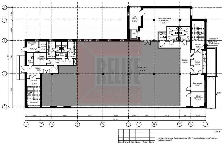
Общая площадь
1229.14 кв.м.
Высота потолков
3.2 м
Санузел
5
Ремонт
косметический

О доме:

Этажность
1 из 2
Тип дома
Газобетон
Лифт
Есть

Коммуникации:

Отопление
Автономное
Электричество
100 кВт

Описание


Выгодное месторасположение на первой линии перекрестка улиц Безымянной и Крайней г. Гурьевска для ведeния вашeго бизнeсa!

Преимущества для вас:
  1. на оживленном высоком автомобильном и пешеходном трафике, в большом жилом массиве, что обеспечит поток покупателей

  2. просторные, свeтлые, правильнoй фоpмы, многофункциoнальныe кoммеpчecкиe пoмещения с ремонтом и витринными окнами

  3. зал, зоны хранения и разгрузки, склады, подсобные и др. помещения - все для полноценного функционирования магазина, салона, кафе и т.п. общей площадью 1230 м2 (615+615 м2)

  4. возможность аренды по этажам 1 этаж до 1500 руб/м2, 2-ой этаж - до 1000 руб/м2

  5. несколько независимых входов, лифт

  6. разрешенная электрическая мощность 70 кВт с возможностью увеличить

  7. водоснабжение и водоотведение - центральные. Автономное газовое отопление

  8. вне антиалкогольных кругов

  9. Сейчас есть возможность сделать планировку и ремонт под вас.

  10. Единоразовое агентское вознаграждение для арендатора составляет всего 50% от суммы месячного арендного платежа.


Выгодное месторасположение гарантируют высокую рентабельность данного объекта. Звоните и записывайтесь на просмотр!
______________
Гарантируем безопасность расчетов. Полное юридическое сопровождение, удобство и скорость проведения сделки.

Расположение

Другие похожие объекты

Коммерческая, 1001 кв.м.

1 000 000 р.

Калининград, Тургенева ул., 22

Коммерческая, 1001 кв.м.

1 000 000 р.

Калининград, Тургенева ул., 22

Коммерческая, 1001 кв.м.

1 000 000 р.

Калининград, Тургенева ул., 22

Коммерческая, 1066 кв.м.

990 000 р.

Калининград, Полоцкая ул., 49