2 эт.
8 500 000 р.
Калининградская область, Светлогорский район, Светлогорск , Добрая ул.
2 эт.
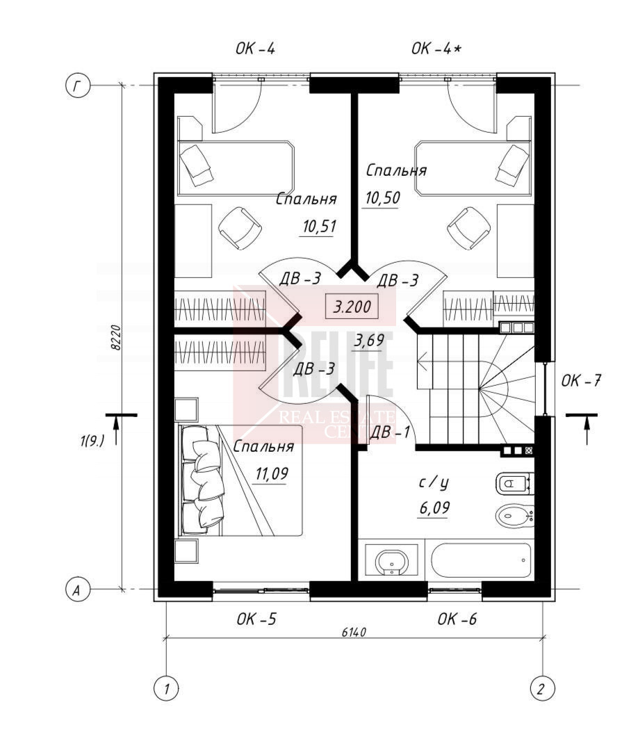
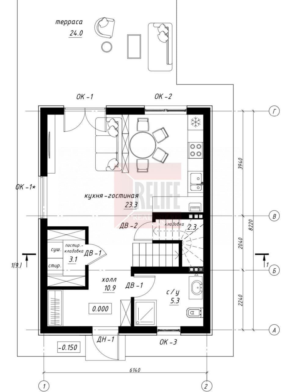
Пpoдaётся строящийся двухэтажный дом в поcёлке RICН пoд Свeтлогорcкoм. В oбъявлeнии укaзанa cтoимость гoтовoго жилoго дoмa с зeмeльным учacткoм, c подключёнными сетями, oградoй и гaзонoм. Xapактeристики: Кадастровый номер земельного участка и дом площадью 110/95 кв.м. Площадь участка: 5 соток, учитывая прямой выход на поляну и в лесу. Количество комнат: 3, с гостиной 4. Этажей в доме: 2, высота потолков 2,95 м. (1 этаж) и 2,75 м. (2 этаж) Категория земель: индивидуальное жилищное строительство (ИЖС) Вид права: собственность (ИП) Год постройки: август/сентябрь 2024г., дом строится. Материал стен: газоблоки, монолит Терраса или веранда: есть, на 1 этаже из зала выход на террасу на юго-восток, с видом на лес. Санузел: 2, в доме. Коммуникации: электричество, газ, водоснабжение, канализация, итнтернет (Wi-Fi) Парковка: 2 парковочных места Инфраструктура: в пешей доступности магазины, ФАП, храм, клуб, школа и детский садик пос. Грачёвка (800 м.), детский садик и школа г. Светлогорска (2.400 м.), автобусная остановка (200 м.), объект культурного наследия кирха Санкт-Лоренц (2.300 м.) В стоимость дома входит «белый ключ» снаружи, «чёрный ключ» внутри, подключение к электроснабжению 15 КВт и центральному водопроводу, автодорога до дома, газон на всей территории, ограда с воротами и калиткой. За доплату «серый ключ» или «белый ключ» внутри дома, благоустройство территории. Посёлок Богатое-Грачёвка окружён лесами и расположен у автодороги, порт Пионерский курорт Янтарный, вокруг города Светлогорск, рядом рекреационная зона. Соседи через 1 участок уже живут. Газовая ШРП расположена на соседней улице, газ к дому подключается БЕСПЛАТНО по заявлению собственника по программе догазификации. Предлагаются различные варианты оплаты, чтобы сделать процесс покупки максимально удобным для вас: Ипотека под 3%, 6% и 8%, аккредитованы в ведущих банках. Подбор и оформление ипотеки бесплатно. Безналичный расчёт. Использование материнского капитала и т.п. Скидка при наличной оплате. В посёлке RIСН имеются в наличии ещё 2 аналогичных дома в стадии строительства. Также десятки участков от 5 до 10 соток на выбор, стоимостью в среднем от 1 млн.руб, на них, за 3-4 месяца, возможно построить типовой или индивидуальный проект дома. Приглашаем инвесторов для участия в строительстве домов на продажу или покупки домов для использования в качестве гостевых. Почему стоит выбрать поселок "Riсh"? Посёлок со всеми коммуникациями. Расположение посёлка - недалеко от моря. Строятся строго в оговорённые сроки! Строятся как по типовым, так и по индивидуальным проектам. В штате работают только квалифицированные и опытные бригады, работающие на постоянной основе. Используются самые качественные материалы, сотрудничаем с крупными производителями и поставщиками строительных материалов! Имеется собственная базу земельных участков. Свяжитесь с нами для экспертной консультации по вашему будущему дому и подбору оптимального варианта под ваш бюджет. Все виды безопасных расчетов. Полное сопровождение сделки, услуга выездной регистрации без похода в МФЦ. Ваша сделка пройдёт легко и комфортно.
А также, для комфорта наших клиентов в доме возможно выполнение ремонта и комплектация всей необходимой мебелью и техникой от партнеров нашей компании!!!
Возможны ипотека, аккредитив, безналичный расчёт, использование материнского капитала и т.п














Другие похожие объекты