Свободное назначение, 471 кв.м. — Relife
+7 4012 333-600Жилой отдел
+7 4012 999-700Коммерческий отдел
Добавлено 26.05.2025
Об этом объекте все знает Кундозеров Игорь +74012999700 Или оставьте номер телефона и мы вам перезвоним

Свободное назначение, 471 кв.м.

Калининградская область, Калининград , Центральный, Красная ул., д.63, к.а

1/2 этаж

500 000 р.

Калининградская область, Калининград , Центральный, Красная ул., д.63, к.а

1 / 2 этаж

Об этом объекте все знает Кундозеров Игорь +74012999700 Или оставьте номер телефона и мы вам перезвоним
Показать на карте Документы

Характеристики

id
46963959
Общая площадь
471 кв.м.
Высота потолков
3 м
Санузел
2
Ремонт
косметический
Подключенные сервисы
Интернет ,

О доме:

Этажность
1 из 2
Тип дома
Монолитный

Коммуникации:

Отопление
Котел газ
Электричество
90 кВт

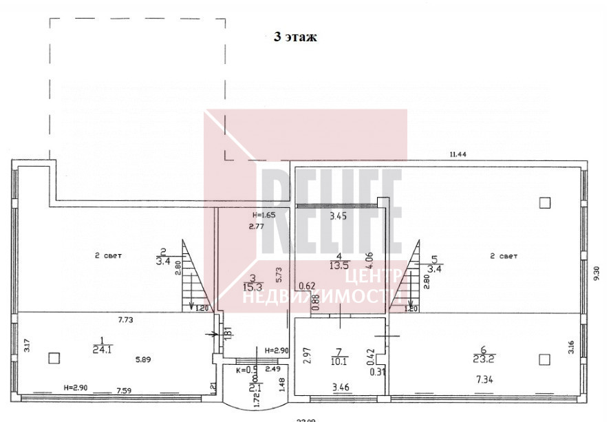
Описание


Двухэтажное здание с отдельным входом на территории ЖК «Красная
Де Люкс».
Общая площадь 471,5 м2.
Площадь кабинетов от 8,7 м2. до 66,2 м2.
Кухня 13,2 м2.
Мощность: 90 кВт.
С отдельным учётом для каждого офиса (блока кабинетов с отдельной
входной дверью).
Горячее водоснабжение: бойлер JUNKERS на 160 литров.
Теплоноситель: газовый котел BUDERUS мощностью 100 кВт.
Системы отопления:
- основное отопление - радиаторное, разводка труб в полу, радиаторы
PURMO;
- дополнительное отопление - напольное водяное.
Кондиционирование
Наружные блоки: DANTEX (2 шт.)
Внутренние блоки: DANTEX (6 шт.)
Парковка
На охраняемой автостоянке и в двухуровневом паркинге комплекса.

Расположение

Другие похожие объекты

Магазин, 387 кв.м.

500 000 р.

Калининград, Ленинский проспект, 131, литера А

Склад, 400 кв.м.

480 000 р.

Переславское, Аграрная ул., 6

Коммерческая, 440 кв.м.

528 000 р.

Калининград, Калинина пл., 26, к а

Коммерческая, 510 кв.м.

400 000 р.

Калининград, Горького ул., 55