Участок, 10 сот — Relife
+7 4012 333-600Жилой отдел
+7 4012 999-700Коммерческий отдел
Добавлено 24.02.2026
Об этом объекте все знает Полевова Наталья +79097862615 Или оставьте номер телефона и мы вам перезвоним

Участок, 10 сот

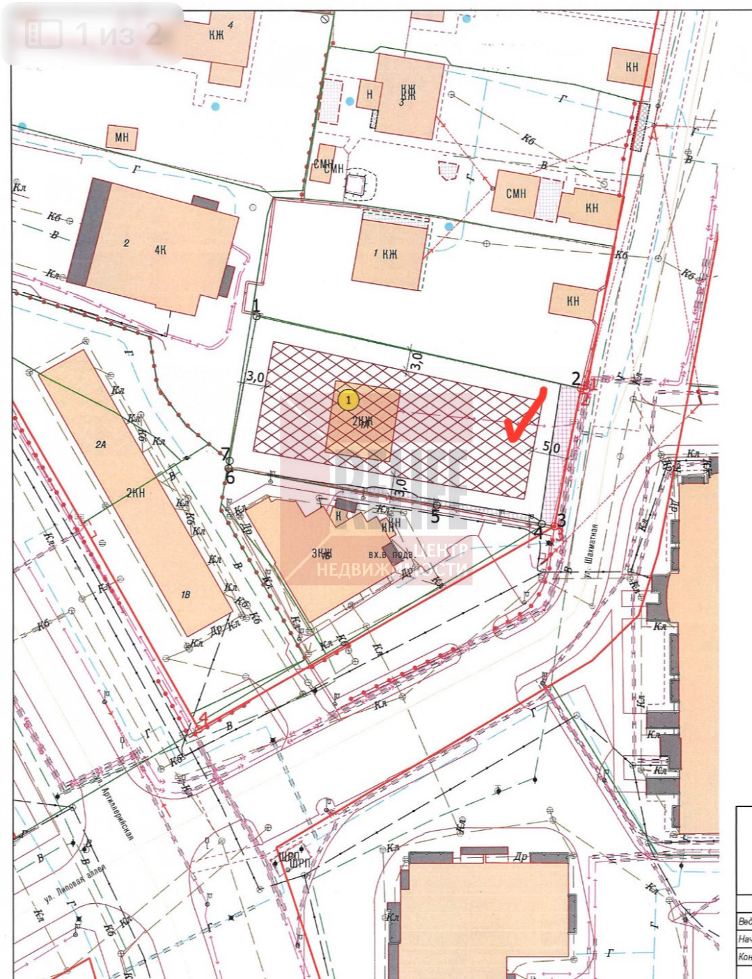
Калининградская область, Калининград , Ленинградский, Шахматная ул., д.1, к.а

18 990 000 р.

Калининградская область, Калининград , Ленинградский, Шахматная ул., д.1, к.а

Об этом объекте все знает Полевова Наталья +79097862615 Или оставьте номер телефона и мы вам перезвоним
Показать на карте Документы

Характеристики

id
46022406
Общая площадь
9.8 сот

Описание

31069158
Идеальный ГПЗУ !
Продаётся земельный участок, расположенный по адресу: город Калининград, Ленинградский район, ул. Шахматная, д.1А. Район активной жилой застройки комфорт класса с развитой инфраструктурой.
КН 39:15:131918:46
Площадь участка 9.8 сот. Земельный участок расположен в зоне Ж-4.
Основные виды разрешенного использования: для ИЖС; блокированная жилая застройка; предоставление коммунальных услуг; амбулаторно-поликлиническое обслуживание; дошкольное, начальное, среднее общее образование; магазины; банковская и страховая деятельность; историко-культурная деятельность, общественное питание, спорт, обеспечение внутреннего правопорядка.
Земельный участок огорожен. На территории участка расположен 3-х этажный кирпичный дом общей площадью 212 кв.м.
К объекту идёт асфальтовая дорога. Есть техническая возможность подключения ко всем центральным коммуникациям.
Звоните и записывайтесь на просмотр!

Расположение