Коммерческая, 82 кв.м. — Relife
+7 4012 333-600Жилой отдел
+7 4012 999-700Коммерческий отдел
Добавлено 02.04.2026
Об этом объекте все знает Гайворонский Сергей +79632949684 Или оставьте номер телефона и мы вам перезвоним

Коммерческая, 82 кв.м.

Калининградская область, Калининград , Центральный, К. Маркса ул., д.85

1/3 этаж

82 000 р.

Калининградская область, Калининград , Центральный, К. Маркса ул., д.85

1 / 3 этаж

Об этом объекте все знает Гайворонский Сергей +79632949684 Или оставьте номер телефона и мы вам перезвоним
Показать на карте Документы

Характеристики

id
133743703
Общая площадь
81.9 кв.м.
Высота потолков
2.75 м
Санузел
1
Ремонт
евро
Подключенные сервисы
Интернет ,

О доме:

Этажность
1 из 3
Тип дома
Кирпичный

Коммуникации:

Отопление
Котел газ
Электричество
25 кВт

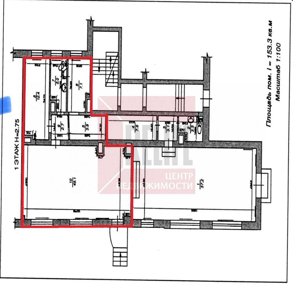
Описание


Сдаётся в Аренду часть помещения свободного назначения общей площадью 81,9 м2.
Помещение расположено на 1 этаже жилого дома.
Помещение полностью автономное, правильная планировка.
Помещение расположено на первой линии ул. К.Маркса в густонаселённом районе г. Калининграда.
Отличная транспортная доступность и развитая инфраструктура, вблизи которой располагаются супермаркет SPAR, магазины, офисы, парковая зона.
Данное помещение возможно использовать под разную коммерческую деятельность: офис, медицинский центр, учебный центр, и др.
В помещении имеется санузел, котел газ, водоснабжение и водоотведение, отопление автономное (котёл газ).
Электроэнергия: напряжение 220+380 В, мощность 25 кВт.,
Установлены охранная и пожарная сигнализация. Много парковочных мест !!!

Расположение

Другие похожие объекты

Коммерческая, 88 кв.м.

88 000 р.

Калининград, Борисовский б-р., 17

Коммерческая, 78 кв.м.

78 000 р.

Гурьевск, Заречная ул., 31, литера а

Коммерческая, 71 кв.м.

95 000 р.

Калининград, К. Маркса ул., 85

Коммерческая, 98 кв.м.

98 000 р.

Калининград, Московский проспект, 274