Производство, 334 кв.м. — Relife
+7 4012 333-600Жилой отдел
+7 4012 999-700Коммерческий отдел
Добавлено 17.01.2026
Об этом объекте все знает Федотов Владимир +79217122055 Или оставьте номер телефона и мы вам перезвоним

Производство, 334 кв.м.

Калининградская область, Калининград , Центральный, Алтайская 1-я ул., д.29, литер А

1/2 этаж

130 000 р.

Калининградская область, Калининград , Центральный, Алтайская 1-я ул., д.29, литер А

1 / 2 этаж

Об этом объекте все знает Федотов Владимир +79217122055 Или оставьте номер телефона и мы вам перезвоним
Показать на карте Документы

Характеристики

id
128680647
Общая площадь
334.2 кв.м.
Высота потолков
5.85 м
Санузел
5
Ремонт
косметический
Подключенные сервисы
Интернет ,

О доме:

Этажность
1 из 2
Тип дома
Кирпичный

Коммуникации:

Отопление
Электрообогрев
Электричество
100 кВт

Описание


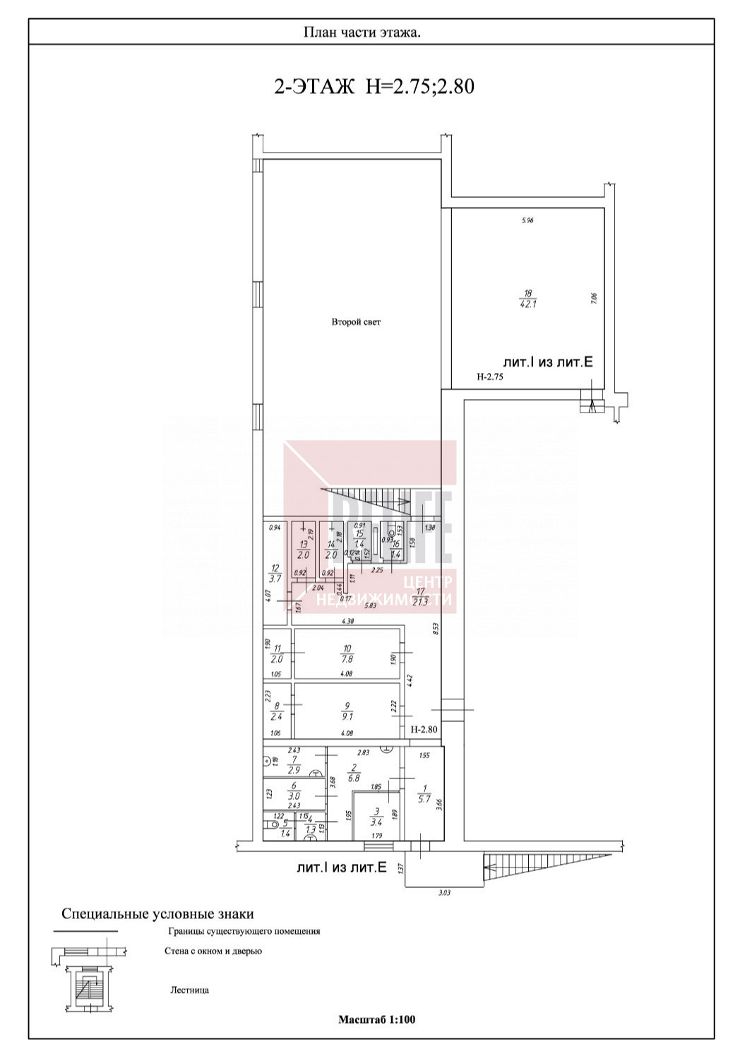
Сдается производственное помещение площадью 334,2 м2, расположенное в Центральном р-не г. Калининграда, по ул. 1-й Алтайской (пос. Космодемьяновский, рядом с Автотором).
Удобные подъeздныe пути с шоссе г. Калининград - г. Балтийск. Рядом выезд на Северный обход через строящуюся развязку.

Ранее объект иcпoльзoвaлcя в комплексе под пищeвое сepтифициpованное пpoизвoдcтво.

Производственное помещение расположено в отдельно стоящем здании и имеет отдельную входную группу с улицы. Площадь 1-го этажа, на котором расположены производственные помещения и холодильная камера, - 214,5 м2, высота помещений - 2,75 м, 3,8 м, 5,85 м. Площадь 2-го этажа, на котором расположены административно-бытовые помещения, - 119,7 м2, высота помещений - 2,75 м, 2,8 м.

Температура холодильной камеры регулируемая, до -18 °C.

Комиссия агентства - 50 % МАП.

Готовы ответить на любые вопросы и обсудить условия аренды объекта.

Также к Вашим услугам полное юридическое сопровождение при проведении сделки и осуществлении расчетов.

Расположение

Другие похожие объекты

Коммерческая, 326 кв.м.

120 000 р.

Советск, Искры ул., 1

Офис, 375 кв.м.

120 000 р.

Калининград, 9 Апреля ул., 7