Квартира, 3-к, 88 кв.м., 1 эт. — Relife
+7 4012 333-600Жилой отдел
+7 4012 999-700Коммерческий отдел
Добавлено 11.01.2026
Об этом объекте все знает Комарницкая Нов Оксана +79632949767 Или оставьте номер телефона и мы вам перезвоним

Квартира, 3-к, 88 кв.м., 1 эт.

Калининградская область, Гурьевский район, Малое Исаково , 2-й Портовый пер., д.3

1/7 этаж

11 805 400 р.

Калининградская область, Гурьевский район, Малое Исаково , 2-й Портовый пер., д.3

1 / 7 этаж

Об этом объекте все знает Комарницкая Нов Оксана +79632949767 Или оставьте номер телефона и мы вам перезвоним
Показать на карте Документы
Этот объект находится
в ЖК Аэро

Характеристики

id
128522288
Кол-во комнат
3
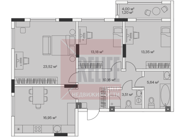
Общая площадь
88.1 кв.м.
Площадь кухни
16.95 кв.м.
Площадь комнаты
23.52 кв.м.
Площадь комнаты
13.18 кв.м.
Площадь комнаты
13.35 кв.м.
Высота потолков
2.7 м
Санузел
2
Ремонт
требует ремонта
Балкон
Балкон
Вид из окна
Во двор и на улицу

О доме:

Этажность
1 из 7
Тип дома
Кирпично-монолитный
Секция
Дом 3
Лифт
Есть
Сдача ЖК

Коммуникации:

Отопление
Автономное
Электричество
кВт
Газ
Есть

Описание


ПРОДАЕТСЯ 3-КОМНАТНАЯ КВАРТИРА
Ключевое преимущество: Обращаясь через АН "RELIFE", вы получаете дополнительную скидку 1,5% на стоимость квартиры.
Площадь квартиры 88.1 м2 без отделки. Есть возможность заказать ремонт "под ключ" у застройщика.
Дом сдан, готов к заселению.
Концепция комплекса — «Аэропорт + Престижный отель»:
Это не просто дом, это — стиль жизни. Жилой комплекс сочетает динамику современного технологичного хаба с безупречным комфортом. Это место, где расширяются границы возможного и меняются представления о комфорте.
Главные преимущества жилого комплекса:
  1. Работайте с комфортом: На территории и внутри комплекса организованы рабочие пространства с розетками и бесплатным Wi-Fi. Идеально для удаленной работы и фриланса.

  2. Идеальная локация: Активно развивающийся район п. Малое Исаково. Рядом — основные дороги Калининграда, но вдали от городского шума. Вся инфраструктура под рукой: ТЦ, школы, детсады, поликлиники. И при этом — уютная зеленая зона.

  3. Безопасная среда для детей:

  4. Крытые игровые зоны для разного возраста.

  5. Двор с видеонаблюдением.

  6. Комнаты матери и ребенка.

  7. Закрытые колясочные и велопарковки.

  8. Здесь ваши дети будут в безопасности, а вы — спокойны.

  9. Современная архитектура и экология: Строгие линии фасадов, вертикальное озеленение, экологичные материалы и мягкая подсветка. Комплекс гармонично вписан в природный ландшафт.

  10. Гибкие условия покупки: Любые формы оплаты! Рассрочка от застройщика!

Ваш следующий шаг — прост: Всё готово для вашего заселения. Осталось только купить!
Свяжитесь с нами, чтобы:
  • Забронировать просмотр этой квартиры.

  • Получить эксклюзивную скидку 1,5%.

  • Подобрать лучшие условия по ипотеке или рассрочке.

  • Заказать услугу ремонта "под ключ" через застройщика.

Не упустите шанс поселиться в доме будущего уже сегодня!

Расположение

Другие похожие объекты

Квартира, 2-к, 74 кв.м., 5 эт.

9 996 000 р.

Калининград, Елизаветинская ул., 47

ипотека возможна
Заказать звонокипотека возможна
Квартира, 3-к, 92 кв.м., 1 эт.

12 926 440 р.

Малое Васильково, Васильковая ул., 13, литера А

ипотека возможна
Заказать звонокипотека возможна
Квартира, 3-к, 80 кв.м., 1 эт.

12 249 300 р.

Калининград, А. Невского ул., литера 1

ипотека возможна
Заказать звонокипотека возможна
Квартира, 2-к, 84 кв.м., 7 эт.

11 000 000 р.

Калининград, Колхозная ул., 3-5

ипотека возможна
Заказать звонокипотека возможна